【ご成約済み】 札幌市手稲区金山


●土地面積225.00m2(68.06坪)
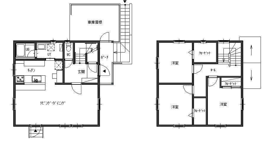
●延床面積136.14m2(41.18坪)
●建築面積53.58m2(16.20坪)
●北西道路・日当たり良好です。
●最寄りのJR函館本線「星置」駅まで徒歩14分
●学区 札幌市立手稲西小学校まで徒歩6分
札幌市立手稲西中学校まで徒歩7分
閑静な住宅街の一画、自然豊かな金山の高台に佇む本物件は、地下車庫が備わる木造二階建て。旧㈱スウェーデンハウス施工物件の既存の木製サッシや木製内部建具を活かしながら自然素材でフルリノベーションを施しました。
南面にはゆとりのあるガーデニングスペースがあり、ドックランや家庭菜園、庭遊びを楽しめ、周囲の自然環境とも合わさり、お子様のご入学に合わせての新居としてや、セカンドライフを愉しむための新居としても最適な物件です。
北海道産の無垢の木と自然素材でリノベーションした気持ちの良いオーガニック空間に仕上がっています。暖房ボイラーは灯油から集中プロパンのガス(エコジョーズ)セントラル暖房に変更しています。


















特徴
【ご成約済み】 札幌市手稲区金山
- 工法 /
- 木質系パネル構造
- 基礎 /
- 鉄筋コンクリート布基礎
土地面積:225.00㎡(68.06坪)
延床面積:136.14㎡(41.18坪)
※上記延べ床面積には地下1階の車庫部分も含まれます。
建築面積: 53.58㎡(16.20坪)
私道負担面積:なし
用途地域:第一種低層住居専用地域
地目:宅地
建蔽率:40%
容積率:80%
築年月:平成2年+令和5年フルリノベーション済み
駐車場:地下車庫1台分あり
取引態様:売主
最終更新日:2024年6月18日
問い合わせ先
有限会社ビオプラス西條デザイン
北海道札幌市北区百合が原4丁目8-1
TEL 011-774-8599
FAX 011-774-8581
MAIL https://test-saijo.replantest2.com/webadmin/contact/
建設工事業 北海道知事許可(般-2)石 第14917号
一級建築士事務所 北海道知事登録(石)第4897号
宅地建物取引業 北海道知事 石狩(1)第8669号
ホームページ https://test-saijo.replantest2.com/webadmin/